Ferien
Wohnung
Sefke
STARTSEITE
  HAFFKRUG  
SCHARBEUTZ
 GÄSTEBUCH 
Haffkrug
Wohnung
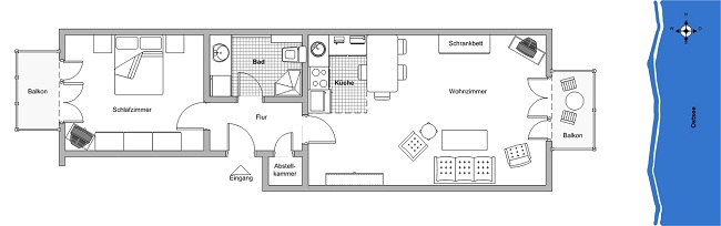
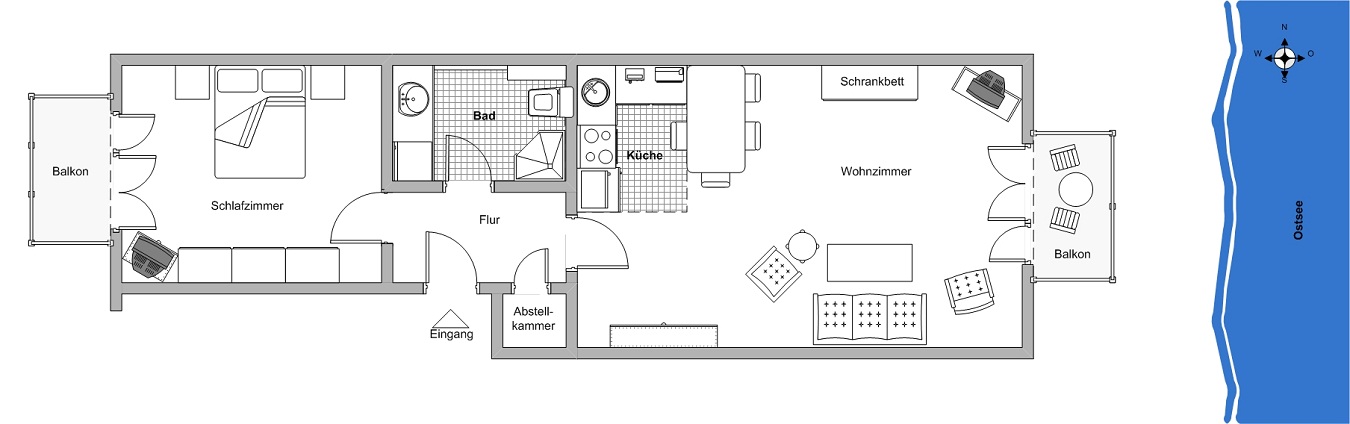
Grundriss
Lage und Umgebung
Aktivitäten
Preise
Angebote
Belegungskalender
Buchungsanfrage
Grundriss Haffkrug
   
Zum Vergrößern auf den Grundriss klicken